Karlsruhe – Durlach
Auslober
HGW Stadt Karlsruhe
Verfahren
Realisierungswettbewerb nach RPW
Platzierung
Anerkennung
Jahr
2016
04 Wettbewerbe & Studien
Karlsruhe – Durlach
Auslober
HGW Stadt Karlsruhe
Verfahren
Realisierungswettbewerb nach RPW
Platzierung
Anerkennung
Jahr
2016
04 Wettbewerbe & Studien
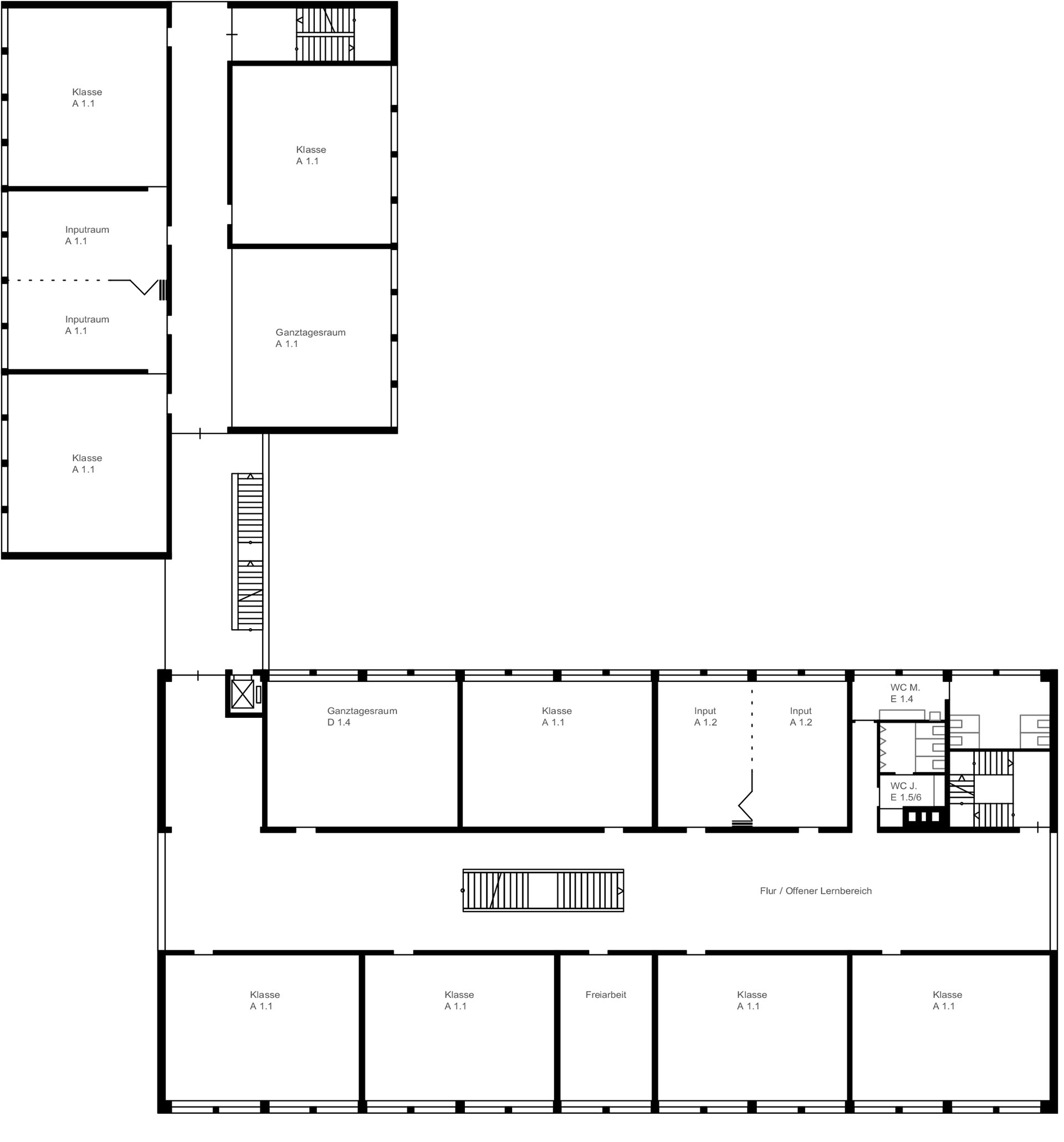
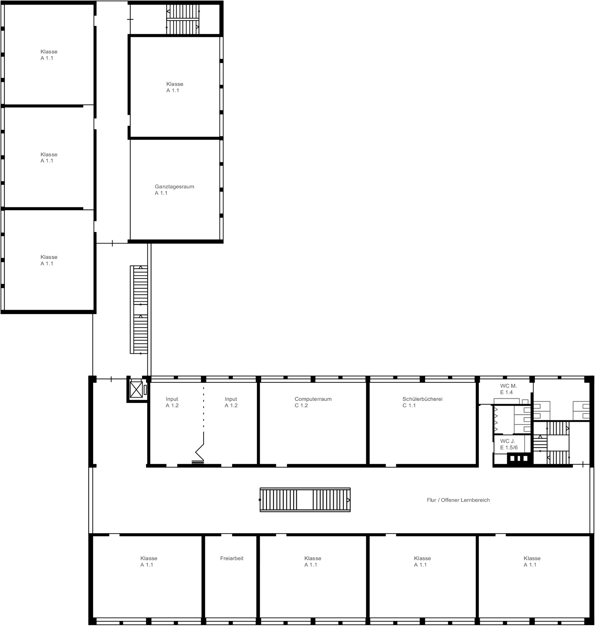
Erweiterung mit Ganztageseinrichtung Schloss-Schule Durlach
Projektbeschreibung
Städtebauliches Konzept
Die Erweiterung der Schloss-Schule wird als kompakter Baukörper im südlichen Bereich des Wettbewerbsgrundstücks, in direktem Anschluss an das Bestandsgebäude positioniert.
Eine straßenbegleitende Bebauung entlang der Marstallstraße, wie bei dem zu ersetzenden Bestandsbau, scheint weder hinsichtlich der funktionalen Anforderungen an den Neubau, noch in Bezug auf die ursprüngliche Positionierung des Westflügels der Karlsburg sinnvoll. Stattdessen wird der westliche Schlosshof freigelegt und die bisher beengte Situation zwischen Schulgebäude und Karlsburg zugunsten eines großzügigen, offenen Schulhofes aufgegeben. Die damit entstehende Verdichtung der Baumassen im südwestlichen Grundstücksteil ist durchaus vergleichbar mit der historischen Ecksituation vor dem Abriss des Westflügels und der südlichen Schlossbebauung.
Erweiterungskonzept
Der Erweiterungsbau führt als zweibündige Anlage mit breitem Mittelflur die vorhandene Gebäudetypologie des Hauptgebäudes fort. Mit einer gemeinsamen, großzügigen Eingangshalle und der räumlichen Verbindung in allen Geschossen werden Haupt- und Erweiterungsbau zu einer schlüssigen und funktionstüchtigen Einheit.
Die im Erdgeschoss direkt an der Eingangshalle liegende Mensa kann durch Aufschieben der Trennwand in die Halle erweitert werden.
Architektur- und Gestaltungskonzept
Die dem Erweiterungskonzept zugrunde liegende Idee der Schaffung eines in funktionaler und räumlicher Hinsicht ganzheitlichen Schulhauses wird auch bezüglich der Gestaltung von Neubau und Bestand fortgeführt. Das aus der Notwendigkeit der Ertüchtigung der Gebäudehülle des Hauptbaus erforderliche Dämm-und Bekleidungsprinzip wird im Neubau sowohl hinsichtlich der Materialität, als auch hinsichtlich der Fassadengliederung weitergeführt. Das den Bestandsbau prägende Gestaltungsprinzip von Skelett und Füllung wird zum Thema des Gesamtgebäudes. Die allseitige Profilierung und Gliederung der Fassaden durch Pfeiler- und Deckenverkleidungen aus durchgefärbten Betonformteilen verbindet Bestand und Neubau.
Sie sehen gerade einen Platzhalterinhalt von Facebook. Um auf den eigentlichen Inhalt zuzugreifen, klicken Sie auf die Schaltfläche unten. Bitte beachten Sie, dass dabei Daten an Drittanbieter weitergegeben werden.
Mehr InformationenSie sehen gerade einen Platzhalterinhalt von Instagram. Um auf den eigentlichen Inhalt zuzugreifen, klicken Sie auf die Schaltfläche unten. Bitte beachten Sie, dass dabei Daten an Drittanbieter weitergegeben werden.
Mehr InformationenSie sehen gerade einen Platzhalterinhalt von X. Um auf den eigentlichen Inhalt zuzugreifen, klicken Sie auf die Schaltfläche unten. Bitte beachten Sie, dass dabei Daten an Drittanbieter weitergegeben werden.
Mehr Informationen